
Realt изучил рынок недвижимости Гродненской области и обнаружил интересный проект — в Островце готовятся к строительству нового жилого комплекса. Компания «Атомжилстрой» планирует возвести три дома на берегу реки Лоша с благоустроенной территорией и прямым выходом к набережной.
Новый жилой комплекс в Островце обещает стать не просто спальным районом, а полноценным пространством для комфортной жизни. Проектом предусмотрено строительство трех домов, которые расположатся на берегу реки Лоша.
Особое внимание разработчики уделили благоустройству придомовой территории. Вместо стандартных качелей с песочницей будущих новоселов ждет пешеходный бульвар, достаточное количество парковок и прямой выход в парковую зону к набережной.
Корреспондент выяснил детали: кто выступает застройщиком, какие планировки и площади предлагаются, а также когда планируется сдать первый дом. Подробности — в материале.
Островец: более 15 000 жителей, ледовая арена, бассейн и концертный зал
До того, как возле Островца в 2012 году начали строить Белорусскую АЭС, об этом городе мало кто знал — особенно за пределами Гродненской области. Компактный, расположенный вдали от больших трасс, населенный пункт с первого взгляда казался ничем не примечательным. Конечно, в 21 веке у города открылось второе дыхание. Сейчас особенно интересно посмотреть на Островец с точки зрения статистики:
- более 15 000 жителей;
- 3 новых микрорайона;
- 4 новых детских сада и 3 новых школы.
В 2018 году здесь сдали в эксплуатацию ФОК с бассейном, спортивным и тренажерным залами, банным комплексом, в 2020-м запустили в работу Центральную районную клиническую больницу, в 2021-м открыли Многофункциональный центр культуры и народного творчества с библиотекой и книжным клубом, в 2023-м распахнула свои двери новая ледовая арена, а в 2026-м, после капитального ремонта, приняла своих первых посетителей городская поликлиника. В городе работают несколько достаточно крупных торговых центров, где представлены популярные у белорусов сетевые бренды продуктов питания, одежды и общепита.
Все, кто активно следят за новостями, уже понимают — население Островца будет расти, инфраструктура продолжит развиваться. Здесь формируется целая экосистема платежеспособных потребителей, для которых в сфере услуг смогут реализовать себя представители малого и среднего бизнеса. По статистике, средний уровень зарплат жителей города, за счет работников Белорусской атомной станции, уже вплотную приблизился к столичному.
Город представляет интерес и для компаний-застройщиков. Так, удачную локацию в районе улиц Октябрьской-Зеленой, рядом с будущей парковой зоной набережной реки Лоша, выбрало ООО «Атомжилстрой». Компания начала строительство в Островце первого коммерческого жилого комплекса.

Европланировки, полная готовность к чистовой отделке, кредиты с низкими %
Квартиру в жилом комплексе можно выбрать и купить уже сейчас. Конечно, на старте проекта у покупателей много вопросов — дома пока что можно увидеть только на рендерах, а деньги за жилье просят вполне осязаемые. Мы решили узнать у застройщика всё самое важное.
Когда начали строить комплекс и в какие сроки сдадут первый дом?
Работы на территории, где раньше располагались деревообрабатывающее производство и складские помещения, начались в 2025 году. Застройщик за свой счет выплатил компенсации и снес старые сооружения, подготовил площадку для строительства. В начале 2026-го приступили к бетонированию фундамента первого дома. Завершить строительство планируют в конце этого года.
Здесь важно отметить, что инициатор и инвестор проекта — столичная компания с офисом в Минске. «Атомжилстрой» планирует работать в Гродненской области с долгосрочной перспективой. Жилой комплекс в Островце станет своеобразной визитной карточкой застройщика, поэтому строительству уделяется повышенное внимание.

Каким будет жилой комплекс?
Комплекс будет состоять трех пятиэтажных четырехподъездных домов. Придомовую территорию оградят, дворы освободят от автомобилей за счет парковки по периметру комплекса. По проекту каждая квартира будет обеспечена отдельным бесплатным машиноместом. Въезд на территорию комплекса будет предоставлен только его жителям.
Застройщик очень грамотно распорядился территорией между домами. Так, одна из зон будет отдана под детскую игровую и спортивную площадки, а другая — под пешеходный озелененный бульвар. Таким образом младшее поколение не будет мешать «тихому» отдыху взрослых.

Что насчет безопасности и повседневных удобств?
Здесь пример брали с самых лучших и заметных. Подъезды с выходом во двор и на улицу, грузопассажирские лифты с увеличенными кабинами, помещения для хранения электросамокатов с возможностью их подзарядки. Для удобства родителей обустроят колясочные.
За доступ в подъезды будут отвечать видеодомофоны с бесконтактной системой доступа и Face ID. Входные холлы в подъездах будут хорошо освещены за счет дверей с максимальной площадью остекления. И, конечно, видеонаблюдение — на придомовой территории, входных группах, в кабинах лифтов.

А как решили вопрос с горячей водой и отоплением?
Застройщик предусмотрел систему автономного отопления каждого дома. В чем его преимущества? Во-первых, не будет плановых летних отключений горячей воды. Во-вторых, отопление станут включать и выключать не по установленному графику, а исходя из конкретных погодных условий. И в-третьих, в новых квартирах можно будет ощутимо сэкономить на коммуналке, так как платить жителям придется не за подогрев воды и отопление, а только за потребление газа, стоимость которого существенно ниже.
Сразу же проговорим остальные моменты, которые касаются инженерных систем. В дома проведут оптоволоконную сеть (это высокоскоростной интернет и цифровое телевидение), в квартирах установят позволяющие экономить «умные» приборы учета электрической энергии, воды и тепла. Новоселы смогут подключать самые современные плиты — керамические или индукционные, все необходимые коммуникации для этого будут.
Какие планировки предлагают?
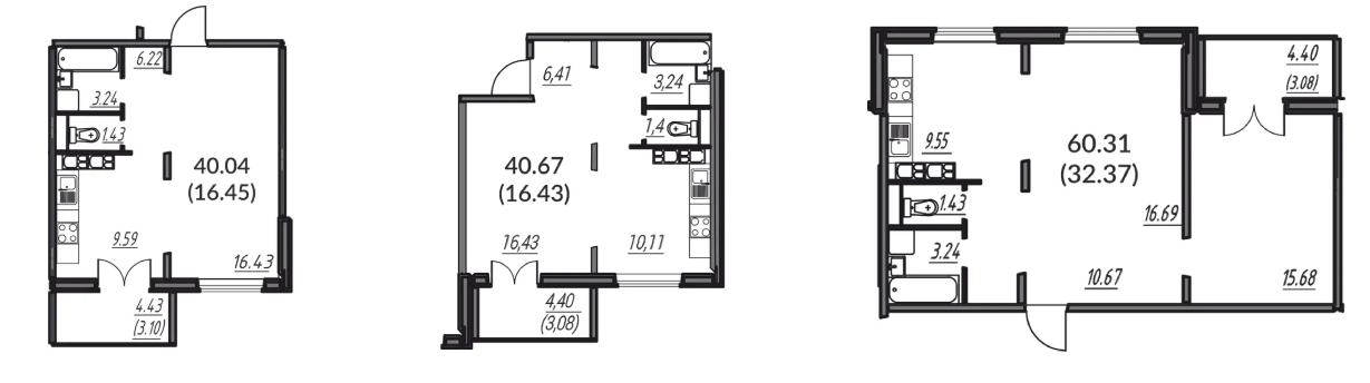
Здесь продумали два варианта: однокомнатные квартиры по 40 м², а также двухкомнатные квартиры по 60 м². Для желающих купить трехкомнатную квартиру предлагаются две смежные однокомнатные, которые в сумме дают квартиру с двумя санузлами и большой гостиной комнатой. Застройщик пошел в сторону европланировок. Стену между комнатой и кухней, которую и так часто сносят при ремонте, решили не возводить, что в целом нетипично для панельных домов. Не будет здесь и коридоров, «съедающих» полезное пространство.

С какой отделкой сдадут квартиры?
Здесь решение тоже нетипичное для панелек. По сути, все поверхности панелей, изготовленных промышленным способом, достаточно ровные и не требуют большой подготовки под чистовую отделку. Новоселы с минимальными для себя затратами смогут уложить ламинат, подготовить и покрасить стены, установить межкомнатные двери, смонтировать натяжные потолки. В отделку от застройщика включена установка металлической входной двери, полная электро- и гидроразводка, система отопления с установкой радиаторов, двухкамерные ПВХ-стеклопакеты, витражное остекление лоджии.

Сколько просят за квадратный метр?
Стоимость квадратного метра на стадии котлована в новом ЖК — 2 700 BYN. Квартиры продают по 100%-й предоплате. Рассрочка до окончания строительства возможна, но предлагается в исключительных случаях. Каждое такое обращение рассматривается в индивидуальном порядке. При необходимости привлечения кредитных средств застройщик предлагает кредитование от ОАО «Белагропромбанк». В рамках партнерской программы дольщикам предоставляются кредиты на строительство ставке 12,9%, сроком до 20 лет.
Через всю область с юга на север: возобновляются рейсы маршрутки «Слоним-Островец»

Проценты настолько низкие, что можно рассмотреть покупку как инвестицию. Так ли это?
Многие наверняка уже это заметили: квартиры в строящихся домах действительно можно рассматривать как объект инвестиций. В этом плане Островец стоит особняком от более крупных городов и областных центров. После утверждения плана строительства третьего энергоблока Белорусской АЭС стоимость аренды жилья для приезжающих в город специалистов из Российской Федерации стремительно взлетела вверх. При практически полном отсутствии предложения стандартные однокомнатные квартиры здесь предлагаются по ставкам, уже превышающим цены арендного жилья в столице.
